Услуги
Здесь вы можете посмотреть информацию о пакетах услуг. Стоимости можно узнать написав в личные сообщения.

Технический дизайн проект
СОСТАВ:
1. обмерный план;
2. эскизы планировок 3-4 варианта;
3. утверждение единого планировочного решения;
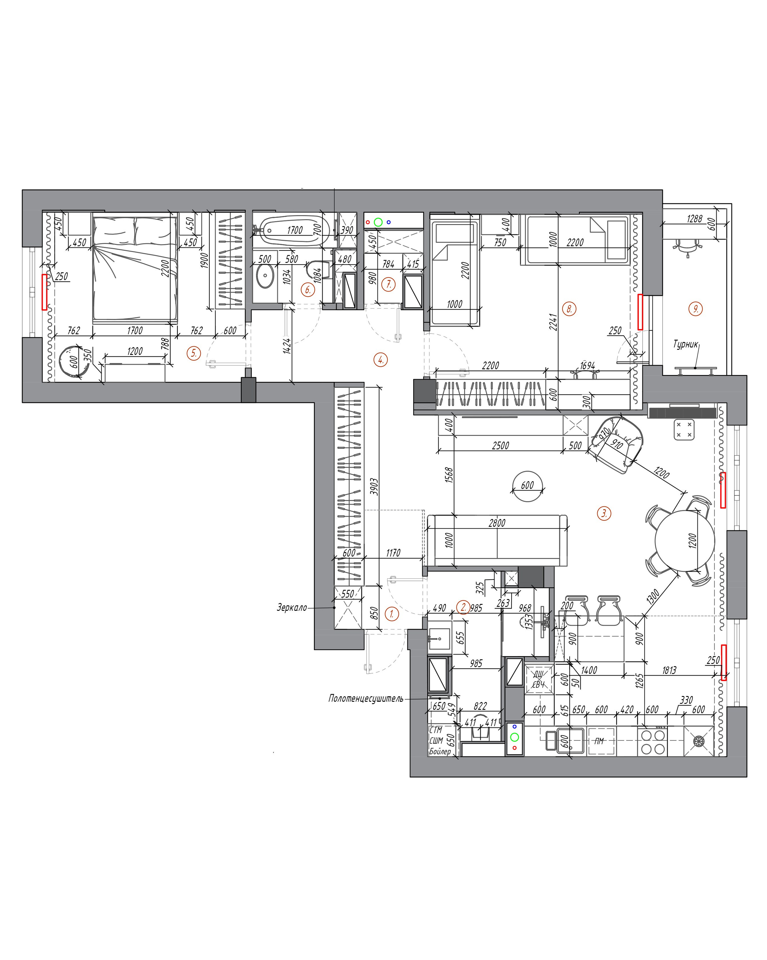
4. комплект чертежей — это развернутая рабочая документация:
* план монтажа/демонтажа перегородок
* план экспликации после перепланировки
* план расстановки и размеров мебели
* ведомость дверных проемов
* план напольного покрытия
* план теплых полов
* план потолков с отметками
* схема привязки светильников
* схема размещения электровыводов
* план выключателей с привязкой к освещению
* план сантехнического оборудования

Дизайн проект интерьера
СОСТАВ:
1. обмерный план;
2. эскизы планировок 3-4 варианта;
3. утверждение единого планировочного решения;
4. 3D визуализация с внесением корректировок до 2 раз.
5. комплект чертежей — это развернутая рабочая документация:
* план монтажа/демонтажа перегородок
* план экспликации после перепланировки
* план расстановки и размеров мебели
* ведомость дверных проемов
* план напольного покрытия
* план теплых полов
* план потолков с отметками
* схема привязки светильников
* схема размещения электровыводов
* план выключателей с привязкой к освещению
* план сантехнического оборудования
* развертки стен каждого помещения с указанием отделочных материалов, высот и размеров.
6. Альбом и спецификация элементов интерьера: чистовых отделочных материалов, мебели и всех используемых предметов интерьера, с указанием артикулов и рекомендацией подрядчиков и салонов. Все, что бы вы могли самостоятельно приблизиться к визуализации.

Авторский надзор дизайн проектов, разработанных нашей студией.
СОСТАВ:
1. выезд дизайнера на объект;
2. консультация строителей на всех этапах работ по вопросам исполнения дизайн-проекта;
3. консультации по закупкам материалов и мебели;
4. цветовой подбор чистовых отделочных материалов на чистовых этапах работ.

Авторский надзор с контролем стройки «под ключ» проектов, разработанных нашей студией.
СОСТАВ:
1. выезд дизайнера на объект с контролем стройки и контролем сроков;
2. консультация строителей на всех этапах работ по вопросам исполнения дизайн-проекта;
3. работа с подрядчиками по производству мебели без вовлечения заказчиков в процесс;
4. организация закупок чистовых материалов, сантехники, мебели, текстиля, декора без вовлечения заказчиков в процесс;
5. вы въезжаете в готовую квартиру с минимальным вовлечением в стройку;
6. зона ответственности заказчика только:
— принятие решений по предложенной визуальной и финансовой части;
— понимание ответственности за принятые решения.
Заказать расчет стоимости услуг.
Для того, чтобы рассчитать стоимость услуг, заполните контактную форму и я свяжусь с вами с ближайшее время
